11 serviced lots up for grabs as Tla’amin Nation lays out plan for new subdivision

40 Tla’amin Citizens joined the conversation about a new subdivision featuring a mix of market and social housing

Chad Galligos, Lisa Williams and Tim Paul share a laugh during the Harwood Drive subdivision meeting on December 13, 2023. 

On December 13, 2023 Public Works Director Carmen Galligos led a second public engagement session on the new Harwood Drive subdivision at the Salish Centre. 

Project planning has been two years in the works and Tla’amin is nearing the end of the engineering phase. 

Galligos set out the purpose of the meeting following a prayer from Denise Smith. 

“We are here to present a revised plan that addresses Citizens concerns raised at our first meeting. We need your ongoing input to make this the best project possible.”

From left: Vangie Francis, Takaya Blaney, and Doreen Hopkins review the plan for the new Harwood Drive subdivision.

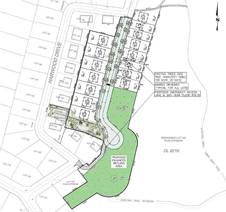
The new subdivision will include 15 lots, 11 for market housing and four for Nation-owned rental homes. It’s anticipated that the building lots will be ready by Fall 2024.

Each serviced lot will cost about $100,000 to construct and will be provided free of charge to Tla’amin citizens who can meet lot allocation criteria. Through the project Tla’amin Nation will contribute over $1.1 million of land and in-kind costs to Tla’amin Citizens.

“This project is one I am really proud of” says hegus John Hackett. “Our citizens have been legislated out of private ownership opportunities for the last 150 years. We know that home ownership is how families build stability, wealth and independence so we look forward to more projects like this in the future.”

At a previous community engagement on the Harwood Drive subdivision Citizens raised issues for project engineers to grapple with, among them – privacy for residents adjacent to the new development, wetlands protection and care for birds and nesting areas, drainage and infrastructure.

Proposals aimed at addressing these concerns were tabled at the second session including drainage options, wetlands planning and bird species monitoring, parks and greenspace, amenities, and lighting. Citizens had the chance to provide a second round of input on these new proposals. 

The new Harwood drive subdivision will be ready for building Fall 2024 and includes a mix of market and rental housing. 

The new subdivision is located just below Tla’amin Convience store in a cul-de-sac setting designed to minimize through traffic. Traffic calming measures, wide sidewalks and connection to the existing trail system are featured in the plans. Some of the building lots will enjoy water views.  

Losa Luaifoa is the Executive Council member responsible for public works and housing says that the current housing shortage is dire and that the project can’t start soon enough.

“Right now, there are almost 100 individuals and families on the Tla’amin housing waitlist and so solutions to ease this pressure are essential.” Luaifoa continued “Not every family wants rental housing and this new subdivision adds much needed and critical private housing ownership opportunities.”

Maynard Harry and Daniel Harry discuss the location and merits of the site plans. 

Among Tla’amin Citizens on the waitlist, well over half are seeking 1 or 2 bedroom units signalling a change in demographics. This demographic shift is something that the housing department is planning for. 

Over the next year, Tla’amin Housing Department will be working towards a CHSP (Community Housing Servicing Plan), says Galligos. “This plan will help Tla’amin Nation identify what housing services our community needs over the next 25 years. It will help prioritize and plan for multiple years of projects including new construction.”

She notes that the new plan will provide multiple options of housing types from emergency shelters, Complex Care, Long Term Care, Social Rental, to private market ownership options.

Galligos add that “The Harwood Subdivision project is one step in the right direction towards our housing strategy that will provide safe, healthy housing for all Tla’amin family types and needs. Thank you to all the Tla’amin Citizens who have expressed their support, interest, and feedback into this project so far.”

Tla’amin Citizens Lisa Williams and Tim Paul talk financing with Bank of Montreal staff at the December 13, 2023 session. Bank of Montreal has an on-reserve lending program that also applies to Treaty Settlement Lands.

For questions related to the Lands & to apply for a lot: contact Denise Smith denise.smith@tn-bc.ca

For questions related to the project management, schedule, and design, contact publicworks@tn-bc.ca

For questions related to the BMO on-Lands mortgage program, contact Sharon.wutke@bmo.com